Mukařov-Srbín, ul. Pampeliškova

Váš nový domov v Mukařově

Když chcete pro svoji rodinu to nejlepší a potřebujete mít vše bez starostí. Vytvořte si bezpečný a šťastný domov pro své nejbližší.

Nabídka domů

Vítejte doma

V exkluzivní lokalitě Mukařov-Srbín vzniká unikátní rezidenční projekt tří samostatných rodinných domů, které spojují moderní architekturu, špičkové technologie a dokonalé soukromí uprostřed zeleně.

Domy jsou zasazeny do klidného přírodního prostředí s výhledy do krajiny, přesto v pohodlném dosahu Prahy. Každý z domů je navržen tak, aby splňoval vysoké nároky na komfort, estetiku i udržitelnost.

Lokalita

Mukařov - Srbín

Malebná středočeská obec oblíbená zejména pro svou zachovalou přírodu a bohatou historii.

Praha na dosah ruky

Rychle v Praze, srdcem v přírodě. V centru Prahy za 40 minut a na metru už za 25 minut – ideální pro život bez kompromisů.

Říčany - kopletní občasnká vybavenost (8 minut).

Lokalita pro rodiny

Srbín je oázou klidu, kde si můžete odpočinout od shonu velkoměsta. Místní atmosféra je přátelská a sousedská, ideální pro rodiny s dětmi.

Občasnká vybavenost

Mateřska a základní škola (3 min.)

Obchod a služby (2 min.)

Kavarna a restaurace (3 min.)

Sportovní areál a dětská hřiště (4 min.)

Lékarna a pošta (5 min.)

Více o lokalitě

Nabídka domů

Projekt tří nadstandardních rodinných domů

Domy tvoří kompaktní, přesto vzdušný celek s promyšleným urbanismem, který zajišťuje maximální soukromí pro každého obyvatele. V okolí se nachází lesy, cyklostezky, školka, škola i veškerá občanská vybavenost.

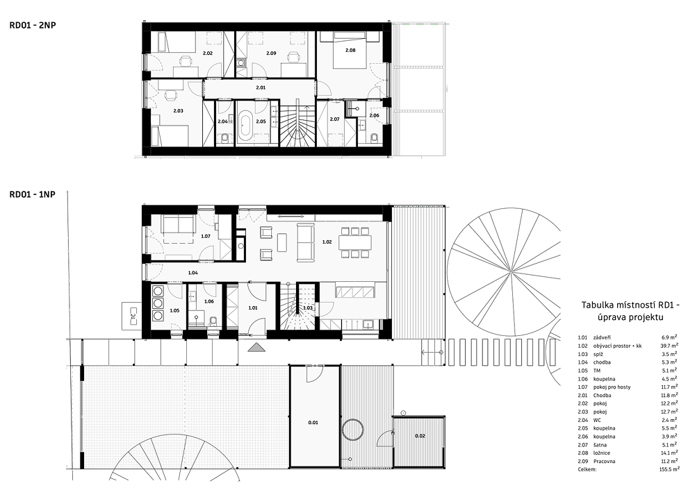
Rodinný dům ALPHA, 6+kk (155,5m2)
  • Dispozice 6+kk s důrazem na vzdušnost, světlo a funkčnost
  • Velkorysé prosklené plochy propojující interiér se zahradou
  • Soukromé pozemky s pečlivě navrženou zahradou, relaxační zónou a sanou
  • Fotovoltaické panely pro úsporný provoz
  • Kvalitní stavební materiály a nadčasový architektonický styl
  • Dostatek parkovacích míst i úložného prostoru

Tento projekt je ideální volbou pro rodiny, které hledají klidné a zdravé bydlení s výbornou dostupností do Prahy a jen několik minut jízdy od Říčan.

Zobrazit nabídku všech domů


Jak postupovat při koupi a financováním vám rádi poradíme

Rodinné domy Mukařov - Srbín